Capannone Pianiga mq.7000 con ampio scoperto su lotto di mq.21.000
Dettagli Immobile
A001840Descrizione
Importante opportunità di locazione a Pianiga (zona Cazzago)
Nel cuore di una delle aree più strategiche tra Dolo e Pianiga, proponiamo in affitto un ampio complesso industriale/artigianale di circa mq.7.000, inserito su un lotto complessivo di mq.21.000 completamente recintato. Il lotto, oltre ad avere una ulteriore cubatura edificatoria pari a mq.4000, si presta per logistica di nuova generazione con ampi spazi di manovra e/o parcheggio dei mezzi.
L’immobile si distingue per una distribuzione funzionale degli spazi, articolati in tre corpi principali:
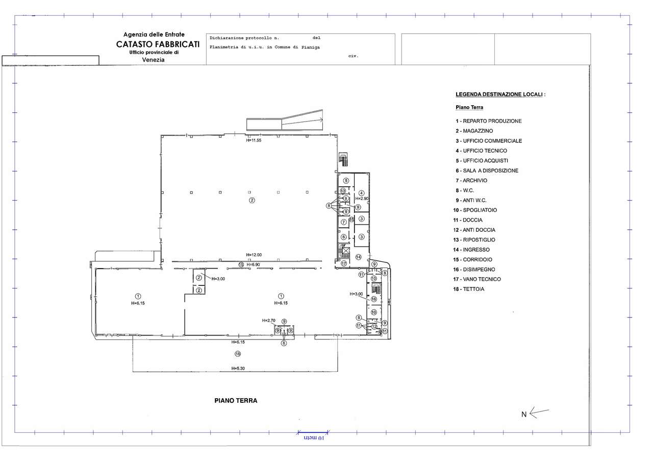
• Area produzione di circa mq.2.500, con altezza interna di mt.6,20, dotata di mensole per carroponte e due ampi portoni carrabili collegati a una tettoia coperta di circa mq.1000 (h 5,80 mt), ideale per le attività logistiche per carico/scarico al coperto.
• Area magazzino di circa mq.2.700, con altezza di mt.12,00, completa di lucernai apribili per un’ottima illuminazione naturale, due portoni carrabili e rampa di carico.
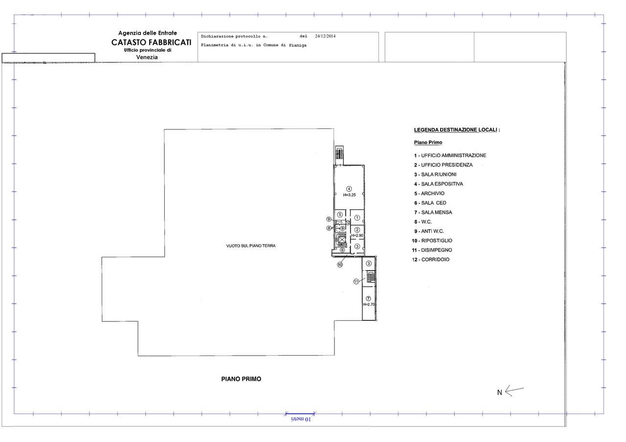
• Palazzina uffici e showroom sviluppata su tre livelli per un totale di circa mq.1.000, rifinita con materiali di pregio, pavimentazione in marmo e servita da ascensore. Suddivisione interna con moduli a vetro e ampi spazi open space. L’intera palazzina è cablata con spazio server dedicato e climatizzato.
L’immobile è dotato di impianto antincendio a norma REI 120, sistema sprinkler e anello antincendio completo, garantendo elevati standard di sicurezza.
All’esterno si sviluppa un’ampia area scoperta con:
• Piazzale anteriore con giardino piantumato
• Piazzale posteriore di circa mq.7.000, con possibilità di ampliamento fino a ulteriori mq.4.000
La posizione è altamente strategica: visibilità dalla A4 e comodo accesso grazie alla vicinanza a due caselli autostradali.
Disponibilità: libero giugno 2026
Canone mensile: € 30.000
Soluzione ideale per attività produttive, logistiche o aziende che necessitano di ampi spazi operativi in posizione di forte visibilità.
Classe energetica D 220,00. Tutte le nostre proposte in www.madida.it
PER MOTIVI DI PRIVACY LE FOTO E L'INDIRIZZO SONO PURAMENTE INDICATIVI COME RICHIESTO DALLA PROPRIETA'
Prendi un appuntamento con i nostri agenti www.madida.it Via Gaetano Donizetti, 3 - 36100 Vicenza
Tel o WhatsApp 04441803703
segreteria@madida.it
Indirizzo
Altri Dati Immobile
Richiedi informazioni per

