Locale commerciale ex banca credem in locazione in Corso Roma, 26
Dettagli Immobile
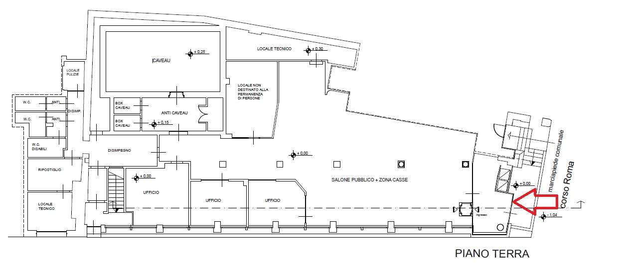
A001828Descrizione
Locale commerciale ex Banca Credem in locazione in Corso Roma, 26
Il negozio si trova nel suggestivo Centro Storico, garantendo una posizione strategica e di grande visibilità.
L'immobile, ha una superficie di Mq. 500 distribuiti su 4 vani e 3 bagni, offre ampi spazi e possibilità di organizzazione interna flessibile. Il piano terra facilita l'accesso e la fruizione dell'area commerciale, favorendo l'interazione con la clientela.
La Classe Energetica A3 garantisce un'ottima efficienza energetica. Possibilità di realizzazione di canna fumaria.
Ipotesi apertura a filo strada di vetrina con rampa accesso per disabili.
O apertura fronte strada di scale pedonali frontali all'entrata negozio
Prendi un appuntamento con i nostri agenti www.madida.it Via Gaetano Donizetti, 3 - 36100 Vicenza Tel o WhatsApp 04441803703 email: segreteria@madida.it
Indirizzo
Altri Dati Immobile
Richiedi informazioni per

